Home
Contact
Admin
ȸ»ç¼Ò°³
Àλ縻
°³¿ä&¿¬Çõ
ÀÎÁõ¼
Á¶Á÷µµ
¿À½Ã´Â ±æ
Á¦Ç°¼Ò°³
CLEAN ROOM
±â±â, Àåºñ
¿¡¾î»þ¿ö¼Òµ¶±â
Ç׿ÂÇ×½À±â
Á¦½À±â ½Ã¼³
°ø±âÁ¶È±â ½Ã¼³
³Ãµ¿ÀåÄ¡, ºÎǰ
CHILLER(¹ÝµµÃ¼¿ë)
FILTER HOUSING
(SUS)
À¯Áöº¸¼ö °ü¸®
CLEAN ROOM ½Ã½ºÅÛ
CLEAN ROOM
½Ã½ºÅÛ
½Ã°ø»ç·Ê
½Ã°ø»ç·Ê
»ç¾÷ºÐ¾ß
»ç¾÷ºÐ¾ß
Àåºñº¸À¯ÇöȲ
°í°´Áö¿ø
°øÁö»çÇ×
Q/A
Á¦Ç°¼Ò°³
HANKUK Moonters CO.,Ltd
CLEAN ROOM ±â±â, Àåºñ
¿¡¾î»þ¿ö¼Òµ¶±â
Ç׿ÂÇ×½À±â
Á¦½À±â ½Ã¼³
°ø±âÁ¶È±â ½Ã¼³
³Ãµ¿ÀåÄ¡, ºÎǰ
CHILLER(¹ÝµµÃ¼¿ë)
FILTER HOUSING(SUS)
À¯Áöº¸¼ö °ü¸®
CHILLER(¹ÝµµÃ¼¿ë)
¹ÝµµÃ¼¿ë CHILLER´Â Å©¸°·ë °ü·Ã ½Ã¼³ÀÇ Utillity Dl Water °ø±ÞÀåÄ¡ÀÇ ¼ö¿¿øµîÀ» Ȱ¿ëÇÏ¿© ¹ÝµµÃ¼ °øÀå ¹× ¿¬±¸¼Ò ½ÇÇè½Ç µîÀÇ Á¤¹Ð±â±â »ý»êÀåºñÀÇ ÀÏÁ¤ÇÑ ¿ÂµµÀÇ ³Ã¼ö¸¦ °ø±ÞÇϱâ À§ÇÑ ÀåÄ¡·Î¼ µ¿ÀÏ ¿ë·®À» ±âÁØÇÏ¿© Ÿ»çÀÇ Àåºñº¸´Ù ¿ÜÇü°ú ¼³Ä¡ ¸éÀûÀÌ Àû¾îµµ µÇ¸ç Back up, Spare±â±â¸¦ ÀåÂøÇϰí ÀÚµ¿ Controll Á¦¾î°¡ ¿ø¸¸ÇÏ°í ½Ã¼³°ü¸® À¯Áöº¸¼ö°¡ ¿ëÀÌÇÏ´Ù.
- »ç¿ë¹üÀ§ : 12¡É ~ 17¡É Á¤µµÀÇ ³Ã°¢¼ö¸¦ ÇÊ¿ä·Î ÇÏ´Â °÷¿¡ ¿øÇÏ´Â ¿ÂµµÀÇ ³Ã°¢¼ö °ø±Þ¸ñÀû.
- °³¿ä : DUAL SYSTEMÀ¸·Î ¿îÀü°æºñ Àý°¨,CPCE ³»Àå, ¸±¸®ÇÁ ¹ëºê ºÎÂø, ÀÀÃà¾Ð·Â ÀÏÁ¤ºÎÇÏ ´ëÀÀ
SÀüÀÚ(¹ÝµµÃ¼) »ç¿ëÁß CHILLER
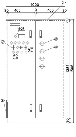
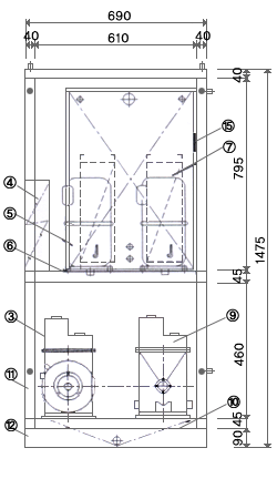
HMC 10CW Chiller ¿ÜÇü ¹× »ç¾ç
SPECIFICATION
¼øÈ¯¼ö·® : 40 LPM
ÆßÇÁµ¿·Â : 790W x 220V
³Ã°¢´É·Â : 13500 Kcal / H
ÀÀÃà±â : SHELL & TUBE TYPE
³Ã°¢±â Çü½Ä : COIL & TANK TYPE
COLOR : FRONT CASING, IVORY(D-32871), IVORY(D-32871), BLUE(D-53516)
PIPING CONNECTION LEFT() RIGHT()
POWER SOUREC : 3¥õ x 220V/380V x 60 Hz